Версия для слабовидящих

Извещение о проведении открытого конкурса на право заключения договора на размещение нестационарных объектов

04 июня 2013 года 12:55

Извещение о проведении открытого конкурса на право заключения договора на размещение нестационарных объектов (временных сооружений) в районе площади по пр. Маркса г.Обнинска в районе ТРК «Триумф Плаза» без предоставления земельного участка

Управление потребительского рынка, транспорта и связи Администрации города сообщает о проведении открытого конкурса на право заключения договора на размещение нестационарных объектов (временных сооружений) в районе площади по пр. Маркса г.Обнинска в районе ТРК «Триумф Плаза» без предоставления земельного участка.

1. Продавец: Администрация города Обнинска, г. Обнинск, пл. Преображения, д. 1, тел. 5-83-10.
2. Организатор конкурса: Управление потребительского рынка, транспорта и связи Администрации города Обнинска, г. Обнинск, пл. Преображения, д. 1, тел. 5-83-23
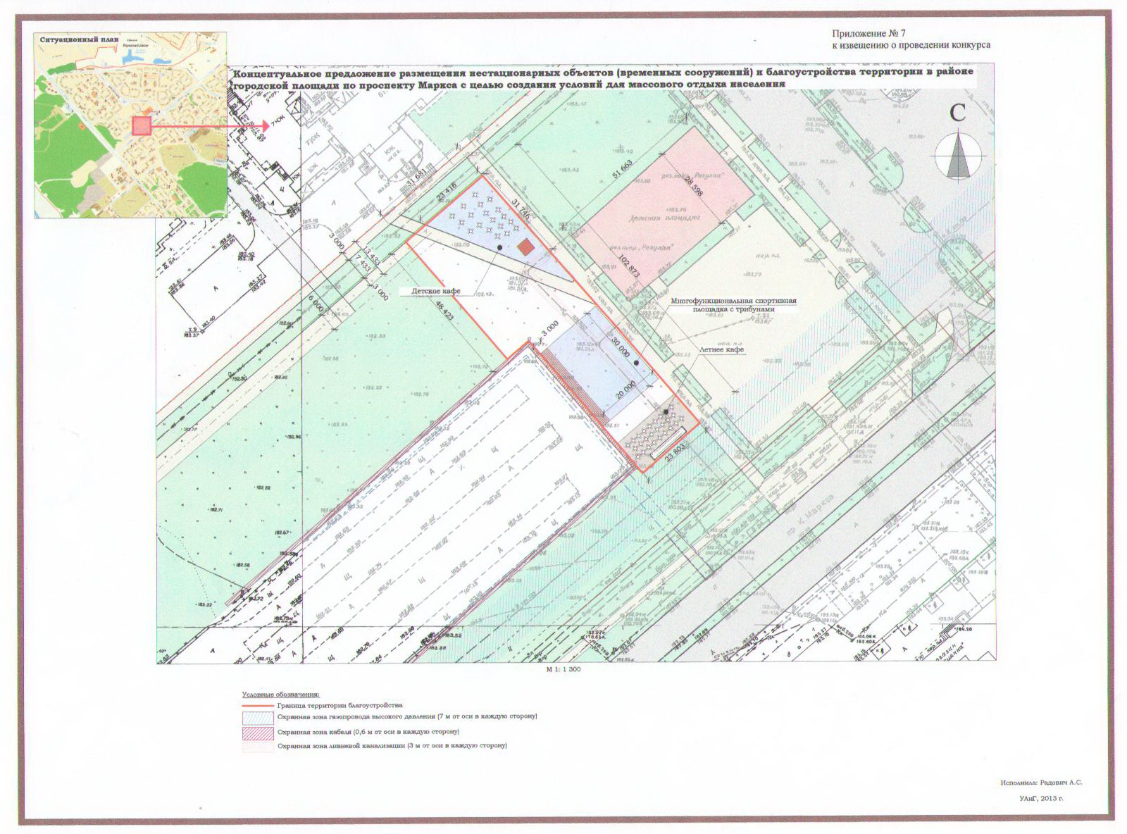
3. Предмет конкурса: право заключения договора на размещение нестационарных объектов (временных сооружений) в районе площади по пр. Маркса г.Обнинска в районе ТРК «Триумф Плаза»без предоставления земельного участка.
4. Начальный (минимальный) размер за право заключения Договора – 500 000 (пятьсот тысяч) рублей.
5. Размер обеспечения заявки на участие в конкурсе: 100 000 (сто тысяч) рублей.
Срок внесения обеспечения заявки на участие в конкурсе: с 05.06. 2013г. по 04.07.2013г.
Реквизиты счета для внесения обеспечения заявки на участие в конкурсе:
Управление финансов Администрации города Обнинска (Администрация города Обнинска л\с 054402ю2010; ИНН 4025427916; КПП 402501001; расчетный счет 40302810529135000090 в РКЦ Обнинска, БИК 042913000).
В платежном документе в графе «назначение платежа» должна содержаться ссылка на дату проведения конкурса, адрес объекта.
6. Критерии определения Победителя:
- оценка проектов размещения нестационарных объектов (временных сооружений);
- размер платы за право заключения Договора;
- размер денежных средств, вкладываемых в исполнение обязательств по Договору.
7. Порядок оценки и сопоставления конкурсных предложений участника.
По критерию «Оценка проектов размещения нестационарных объектов (временных сооружений)» оценка конкурсного предложения определяется следующим образом:
Максимальное количество баллов по критерию – 40 баллов.
Шаг расстановки баллов по критерию - 5 баллов.
Каждому представленному проекту членом конкурсной комиссии, исходя из оригинальности тематического и дизайнерского оформления, инновационных решений, функциональности, архитектурного облика, использования современных материалов и оборудования, проставляется место, начиная с первого и далее по возрастанию. Проекту, занявшему первое место, присуждается максимальное количество баллов. Проекту, занявшему второе и последующие за ним места, присуждается на 5 баллов меньше предыдущего. Количество баллов, набранных каждым проектом, определяется как среднеарифметическое значение (сумма набранных каждым из проектов баллов делится на значение количество единиц - членов конкурсной комиссии).
По критерию «Размер платы за право заключения Договора» оценка конкурсного предложения определяется следующим образом:
Максимальное количество баллов по критерию – 30 баллов.
Конкурсному предложению по критерию «Размер платы за право заключения Договора» с максимальным размером платы присуждается максимальное количество баллов. Количество баллов, присуждаемых остальным участникам конкурса, рассчитывается пропорционально, как отношение произведения размера платы, предложенной участником конкурса за право заключения Договора, и максимального количества баллов к максимально предложенной сумме.
По критерию «Размер денежных средств, вкладываемых в исполнение обязательств по Договору» оценка конкурсного предложения определяется следующим образом:
Максимальное количество баллов по критерию – 30 баллов.
Максимальное количество баллов присуждается конкурсному предложению, которым заявлено о вложении в исполнение проекта и обязательств по Договору максимальной суммы денежных средств. Количество баллов, присуждаемых остальным участникам конкурса, рассчитывается пропорционально, как отношение произведения предложенного участником конкурса размера денежных средств, вкладываемых в исполнение обязательств по Договору, и максимального количества баллов к максимально предложенной сумме.
Количество баллов, набранных каждым из участников по каждому конкурсному предложению, суммируется.
Победителем признается участник, заявке на участие в конкурсе которой присвоено наибольшее количество баллов.
8. Срок, место предоставления заявки на участие в конкурсе: с 5 июня 2013 года, в рабочие дни с 9-00 до 18-00, обеденный перерыв с 13-00 до 14-00, Администрация города Обнинска, пл. Преображения, д. 1, каб. 315, тел 5-83-23, контактное лицо – Тонких Надежда Николаевна.
9. Дата, время окончания приема заявок на участие в конкурсе: 4 июля 2013 года, 18.00
10. Место, дата и время вскрытия конвертов с заявками на участие в конкурсе, рассмотрения заявок, оценки и сопоставления конкурсных предложений, подведения итогов конкурса: 5 июля 2013 года, 12.00, г. Обнинск, Администрация города Обнинска, пл. Преображения, д.1, каб. 401.

Приложения:

Постановление о проведении конкурса
Состав конкурсной комиссии
Положение о проведении конкурса


Форма заявки для юридических лиц (приложение № 1);
Форма заявки для индивидуальных предпринимателей (приложение № 2);
Форма конкурсного приложения (приложение № 3);
Форма описи документов, представляемых для участие в конкурсе (приложение № 4);
Требования к размещению нестационарных объектов (временных сооружений) (приложение № 5);
Проект договора размещения нестационарных объектов (временных сооружений) в районе площади по проспекту Маркса города Обнинска в районе ТРК «Триумф Плаза» без предоставления земельного участка (приложение № 6);
Схема размещения нестационарных объектов (временных сооружений) (приложение № 7).

 

 

 

 

 

Создано: 04.06.2013 12:56
Дата последнего обновления страницы: 04.06.2013 02:20