Версия для слабовидящих

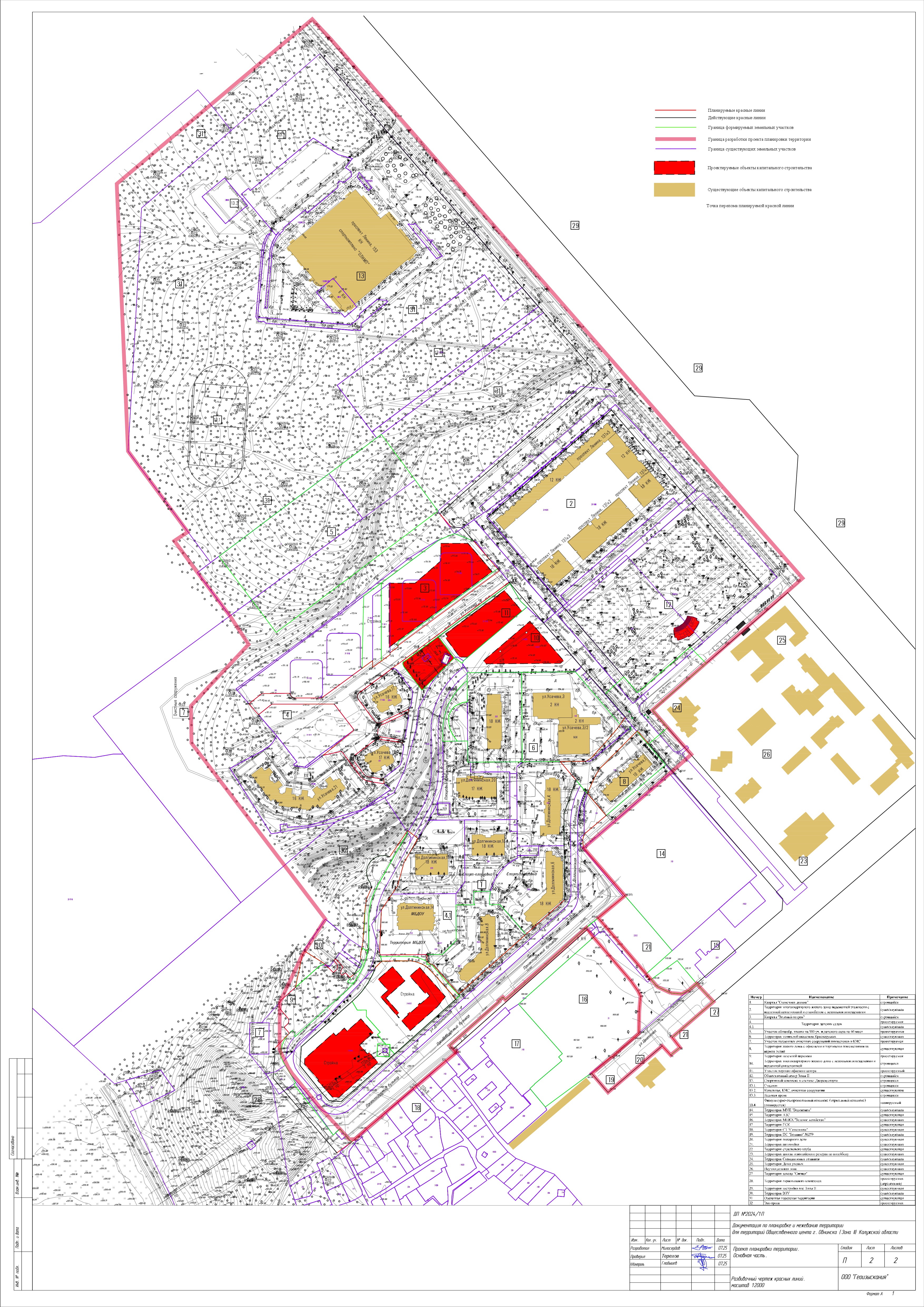
Проект по внесению изменений в документацию по планировке территории общественного центра города Обнинска (Зона II)

Архив

Чертеж границ существующих земельных участков

Чертеж межевания территории

Создано: 26.06.2015 09:59
Дата последнего обновления страницы: 17.09.2025 10:25